Westergrift 69, Meppel

739.500 k.k.

Kenmerken van de woning

  • Adres

    Westergrift 69

  • Stad

    Meppel

  • Postcode

    -

  • Gemeente

    -

  • Bouwjaar

    2025

  • Volume

    625 m³

  • Prijs

    739.500 k.k.

  • Perceeloppervlakte

    362 m²

  • Woonoppervlakte

    165 m²

  • Tuinoppervlakte

    168 m²

  • Tuinligging

    Zuidwest

  • Verdiepingen

    3

  • Kamers

    5

  • Slaapkamers

    3

Over de woning

Kom kijken op het open huis op vrijdag 31 oktober van 09.00 uur tot 10.00 uur.

Thuis waar het uitzicht nooit verveelt en elke kamer mogelijkheden biedt

Welkom bij Westergrift 69, een gloednieuwe royale woning met A+++ energie label op een prachtige locatie in de jonge wijk Nieuwveense Landen. Hier geniet je dagelijks van een weids uitzicht over de landerijen, terwijl je woont in een energiezuinige en direct te betrekken woning die je nog helemaal naar eigen smaak kunt inrichten. We hebben een aantal mooie afbeeldingen gemaakt om te laten zien hoe je de tuin en woning kan inrichten.

Hoogtepunten van de woning:

- Ruime woonkamer met veel lichtinval
- Woonkeuken met openslaande deuren naar de tuin (keuken niet inbegrepen, dus volledig naar eigen wens te plaatsen!)
- Handige deur vanuit de keuken naar de garage waardoor een bijkeuken te realiseren is
- 3 ruime slaapkamers op de eerste verdieping
- Badkamer met ruimte voor een inloopdouche, wastafel, tweede toilet, volledig naar eigen wens te plaatsen (niet inbegrepen)
- Royale open zolderverdieping, ideaal voor extra slaapkamers, werkruimte of hobbykamer
- Aangebouwde garage (ca. 17 m²) en ruime oprit voor meerdere auto’s
- Tuin op het zuidwesten met vrij uitzicht
- Voorzien van vloerverwarming op de begane grond en 8 zonnepanelen
- Gasloos met warmtepomp en 180 liter boiler
- Definitief label A+++

Indeling:

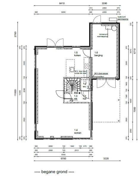
Begane grond:
Entree, hal, meterkast en toilet. De lichte woonkamer staat in open verbinding met de woonkeuken. Via de openslaande deuren loop je zo de ruime tuin in, waar je volop kunt genieten van de middag- en avondzon.

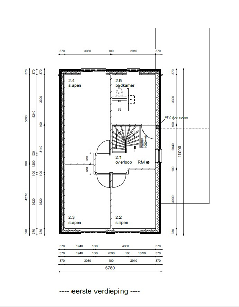
Eerste verdieping:
Overloop, drie ruime slaapkamers en een luxe badkamer met ruimte voor een inloopdouche, wastafelmeubel, tweede toilet, designradiator en raam voor daglicht en ventilatie.

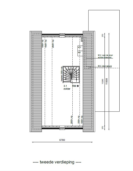
Tweede verdieping:
Een royale open zolderverdieping met volop mogelijkheden voor extra slaapkamers, een werkkamer of speelruimte. Hier vind je ook de aansluitingen voor wasmachine en droger.

Buiten:
De achtertuin (zuidwesten) biedt prachtig vrij uitzicht. Aan de voorzijde is plaats voor meerdere auto’s op eigen terrein.

Waarom kiezen voor Westergrift 69?

Deze woning combineert comfort, ruimte en duurzaamheid (A+++) met een unieke ligging. Je woont in een rustige, kindvriendelijke wijk, vlakbij voorzieningen, scholen en uitvalswegen. Omdat de keuken en badkamer nog niet geplaatst zijn, kun je hier jouw droomkeuken en badkamer realiseren en de woning volledig afstemmen op je eigen woonwensen. Oplevering in overleg.

Een unieke kans om nieuw, royaal en energiezuinig te wonen met vrij uitzicht!

Maak snel een afspraak voor een bezichtiging en laat je verrassen door de mogelijkheden.

Plan een afspraak

Selecteer een dagdeel (optioneel)

* is verplicht

Marjolein Houtman

Marjolein Houtman

Makelaar / nieuwbouwadviseur

Plan een afspraak
alberdine kin heuvelman