Nieuwveense Landen Brummelhuis, MEPPEL

Verkocht

Kenmerken van de woning

  • Stad

    MEPPEL

  • Postcode

    7942 NA

  • Prijs

    Verkocht

  • Woonoppervlakte

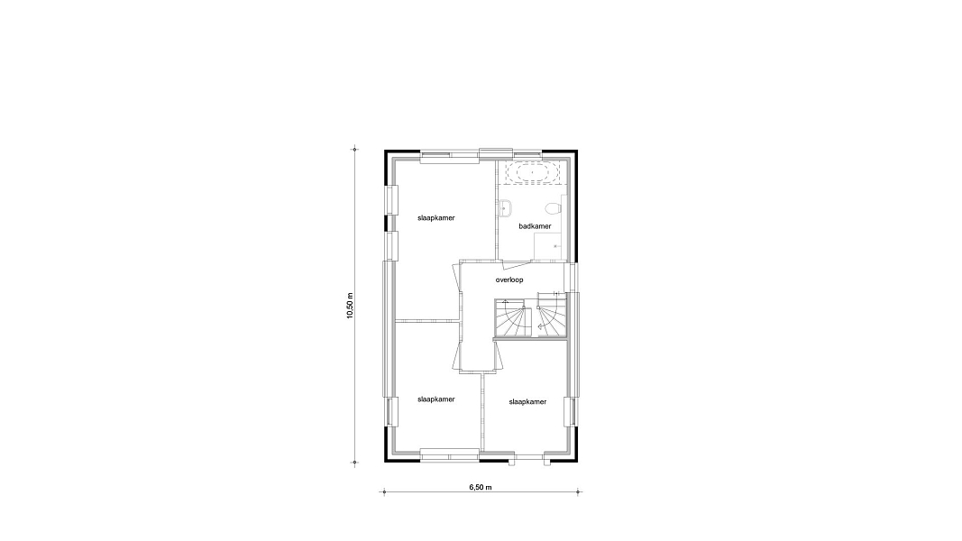
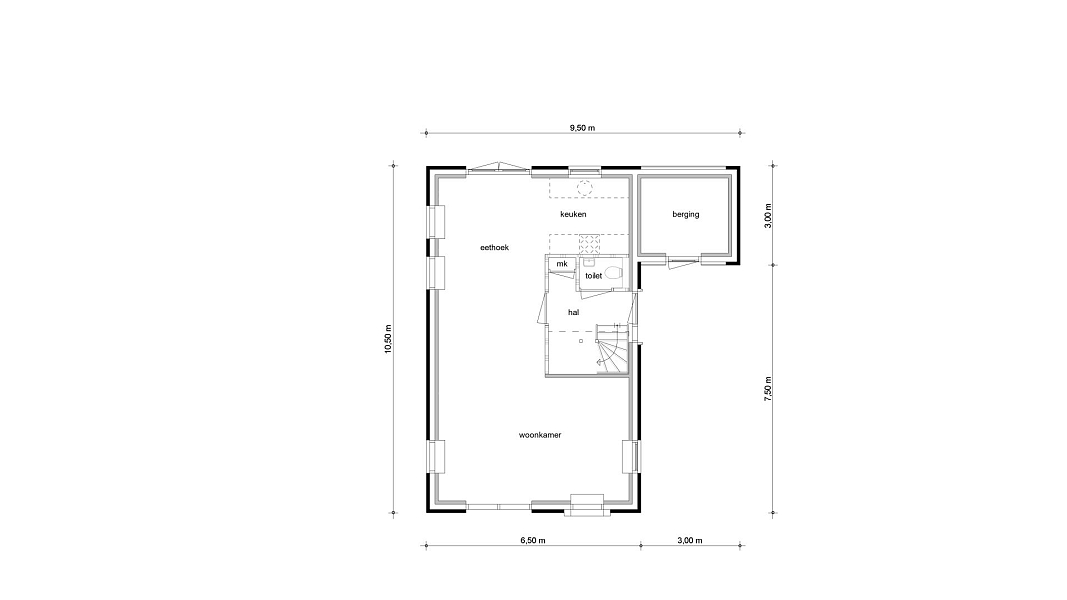
    152 m²

  • Perceeloppervlakte

    -

  • Volume

    603 m³

Over de woning

Voor ieder wat wils! Droom je van een grotere woning op een mooie en rustige locatie? Er zijn nog 5 kavels beschikbaar waarop gebouwd kan worden. Maak een keuze uit één van de vijf woningen en Brummelhuis regelt de rest. Ben je nieuwsgierig naar de mogelijkheden neem dan contact met ons op. De aangegeven koopsom betreft de woning zoals aangegeven op de afbeeldingen.

Weideblick is een water- en groenrijke wijk waar je elke dag kunt genieten van de prachtige omgeving en je eigen vrijstaande woning. Op de vrijstaande kavels met nummers 123 tot en met 127 aan de Westergrift heeft Brummelhuis 5 verschillende woningtypen ontwikkeld die op deze kavels gebouwd mogen worden.

Brummelhuis heeft meer dan dertig jaar ervaring in het realiseren van droomhuizen. Zorgeloos bouwen, wonen en genieten is bij Brummelhuis geen luxe, maar een vanzelfsprekendheid. De Woningborg garantie verzekert u ervan dat uw woning volgens alle afspraken volledig kan worden afgebouwd. Zodra 1 woning is verkocht, zal de aannemer deze woning ook bouwen!

EXTRA'S:
- keukencheque van maar liefst € 15.000,-. Uniek is dat je zelf kiest waar je je droomkeuken koopt. (deze actie is geldig bij het verstrekken van de opdracht voor 1 april 2023)
- ben je geen held in schilderen? Zonder extra kosten kan je kiezen voor kunststof kozijnen
- 1 woning verkocht = 1 woning bouwen

Genoemde aanneemsommen zijn inclusief:
* zonnepanelen
* warmtepomp
* sanitair en tegelwerk
* afschilderwerk buitenzijde houtwerk (éénmaal). Indien je kiest voor kunststof kozijnen komt dit te vervallen
* vloerverwarming begane grond (m.u.v. berging/garage)
* stelpost sanitair en tegelwerk, € 6.000,- (bij type 01 a € 9.000,-)
* sonderingen
* diepere/aangepaste fundatie
* aansluitkosten water, elektra en riolering
* leges welstand en omgevingsvergunning (bouwen)
* bouwaansluitingen en verbruik bouwwater en - stroom tot de dag van oplevering
* gescheiden rioolsysteem (incl. hemelwaterinfiltratiesysteem)
* casco-all-risk verzekering tijdens de bouw
* oplevering Vereniging Eigen Huis
* Woningborg certificaat (afbouwwaarborg en kwaliteitsgarantie)
* 2x nestkast gierzwaluw en 2x nestkast huismus
* technische omschrijving / versie januari 2023 / Weideblick Meppel

Wil je weten of jouw droomwoning hier te realiseren is? Bespreek met ons je wensen zodat jij hier straks in alle rust kan wegdromen bij een weids uitzicht.

Ben jij nieuwsgierig hoeveel je kan financieren? Het is mogelijk een check uit te laten voeren door één van onze hypotheekadviseurs. Je kunt contact opnemen met onze hypotheekafdeling op het nummer 088 - 555 1 999.

Plan een afspraak

Selecteer een dagdeel (optioneel)

* is verplicht

Marjolein Houtman

Marjolein Houtman

Makelaar / nieuwbouwadviseur

Plan een afspraak
alberdine kin heuvelman