Villa Landgoed (Bouwnr. 2), Steenwijk

639.900 v.o.n.

Kenmerken van de woning

  • Stad

    Steenwijk

  • Postcode

    8332 MC

  • Prijs

    639.900 v.o.n.

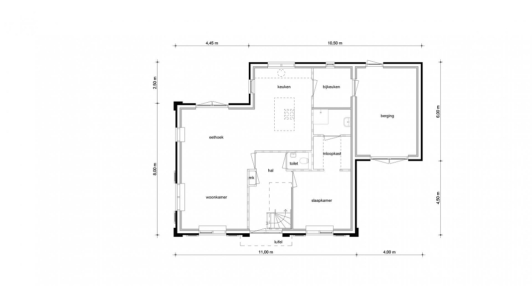
  • Woonoppervlakte

    185 m²

  • Perceeloppervlakte

    2000 m²

  • Volume

    749 m³

Over de woning

Wonen op een Landgoed in de Villa van je dromen? Dat kan op Landgoed de Woldberg!


In Eeser Landgoed zijn 10 zeer ruime kavels beschikbaar. Op deze kavels kunnen een drietal verschillende woningtypes gekozen worden. Vervolgens ga je samen met Brummelhuis jouw woningtype verder personaliseren tot je eigen droomvilla. Je kiest dus eerst je kavel en daarna je favoriete Villa.


Standaard is er een stelpost van EUR 20.000,- voor de keuken en EUR 12.500,- voor de badkamer.


Kijk voor de verschillende woningtypes en beschikbare kavels op de projectwebsite.


De kavels variëren van 2.000 tot 3.000 m2.

De woonoppervlakte van de Villa's varieert van 154 tot 250 m2 of nog groter als dat de wens is.


Villa type 2 is de middelste van de drie woningen. Een ruime gezinsvilla met ruimte voor ieders eigen plekje.


Wij informeren je graag over de mogelijkheden en procedure.

Plan een afspraak

Selecteer een dagdeel (optioneel)

* is verplicht

Marjolein Houtman

Marjolein Houtman

Makelaar / nieuwbouwadviseur

Plan een afspraak
alberdine kin heuvelman