Villa Buiten (Bouwnr. 3), Steenwijk

599.265 v.o.n.

Kenmerken van de woning

  • Stad

    Steenwijk

  • Postcode

    8332 MC

  • Prijs

    599.265 v.o.n.

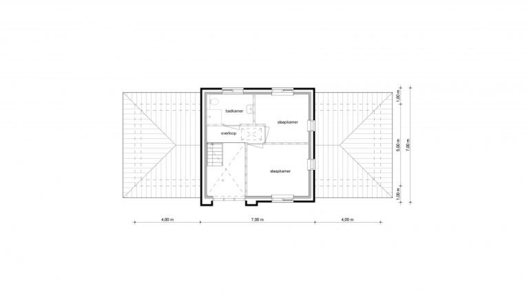
  • Woonoppervlakte

    103 m²

  • Perceeloppervlakte

    2011 m²

  • Volume

    500 m³

Over de woning

Wonen op Landgoed De Woldberg-Buiten....


Ben je op zoek naar een unieke plek om je droomwoning te realiseren? Dan is wonen in deelgebied Eeser Buiten op Landgoed De Woldberg in Steenwijk iets voor jou! Landgoed De Woldberg is de ideale plek voor natuurliefhebbers die royaal en ruimtelijk willen wonen. Naast natuurschoon zijn er veel voorzieningen binnen handbereik in de vestingstad Steenwijk. Kom je ook wonen op deze bijzondere locatie?


Er zijn 12 zeer royale kavels te koop op deze prachtige natuurrijke locatie in Steenwijk. De kavelgrootte varieert tussen maar liefst 2011 m2 en 2352 m2.


Op elke kavel zijn verschillende woningtypes mogelijk, samen met Notebomer uit Surhuisterveen ga je de woning verder personaliseren. Je kiest dus eerst je kavel en daarna je favoriete woning.


Welke woning heeft jouw voorkeur? Alle woningen zijn ontworpen in de Frank Lloyd Wright stijl en kunnen naar eigen woonwensen aangepast worden.


Graag vertellen we je meer over de mogelijkheden en procedure.

Plan een afspraak

Selecteer een dagdeel (optioneel)

* is verplicht

Marjolein Houtman

Marjolein Houtman

Makelaar / nieuwbouwadviseur

Plan een afspraak
alberdine kin heuvelman